• შემოგვიერთდით
    GEO
    ENG
    თქვენი სივრცის დიზაინი იქმნება სწორედ აქ

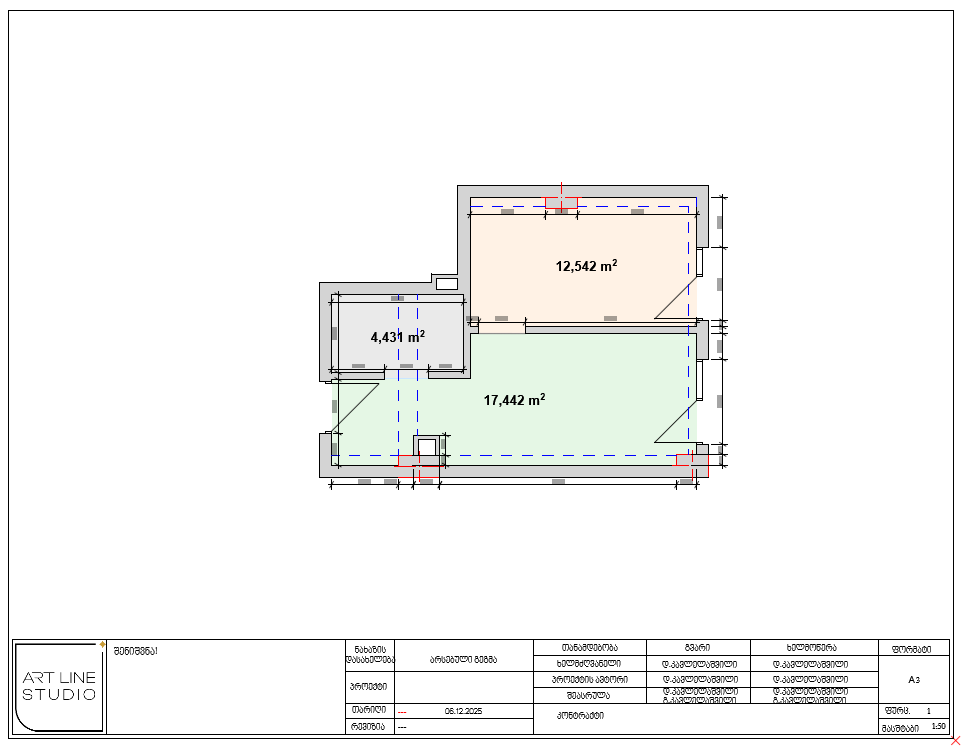
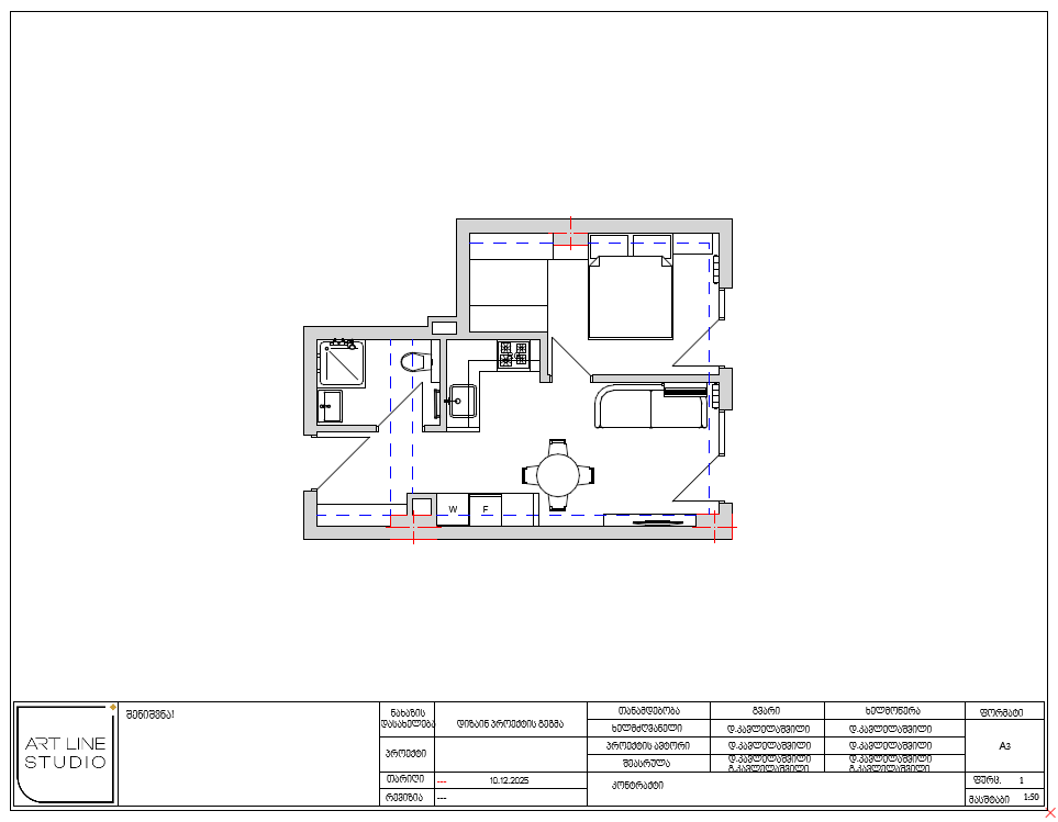
    კრწანისის რაიონში არსებული, მცირე ფართობის აპარტამენტის ოპტიმალური გეგმარების დიზაინ-პროექტი

    მდებარეობა
    ქ. თბილისი, კრწანისის რაიონი
    ფართობი
    34.00 მ²
    შესრულების წელი: 2026 წ
    პროექტის ავტორი
    ინტერიერის დიზაინერი დავით კავლელაშვილი
    პროექტის აღწერა

    წარმოგიდგენთ ქ. თბილისში, კრწანისის რაიონში არსებული აპარტამენტის დიზაინ-პროექტს.

    აპარტამენტის მცირე ფართობისა და დამკვეთის სივრცითი მოწყობის სურვილის გათვალისწინებით,

    განხორციელდა ოპტიმალური გეგმარება, რამაც საშუალება მისცა დიზაინ-პროექტის ავტორს წარმატებით

    განეხორციელებინა პროექტში არსებული გამოწვევები.

    დიზაინ-პროექტის ჯამური ფართობი - 34.00 კვ.მ.

    ოპტიმალური გეგმარებით სივრცითი მოწყობა შემდეგნაირად ჩამოყალიბდა:

    - სტუდიო - ჰოლი, სამრეცხაო ზონა, სამზარეულო ზონა, სასადილო ზონა, მისაღები ზონა

    - სველი წერტილი

    - საძინებელი, დამოუკიდებელი საგარდერობე სივრცით

    დიზაინ-პროექტის ავტორი:

    • პერსონალური ინტერიერის დიზაინერი დავით კავლელაშვილი;

    #ArtLineStudio #Interiordesign #Designproject #Interiordesigner #DavidKavlelashvili